VISO 06-2017 – THEMA / THÈME – Buzzo Spinelli Architecture, Corse/FR
Die richtige Balance I Le juste équilibre
Die beiden Architekten Isabelle
Buzzo und Jean-Philippe Spinelli, die 2014 zusammen das Büro Buzzo Spinelli
Architecture gründeten, haben in den rund sieben Jahren seit der Erlangung
ihrer Architekturdiplome an der École Nationale Supérieure d’Architecture de
Marseille (ENSA-M) und trotz ihrer Jugend ein beachtliches Portfolio erarbeiten
können.
Les deux architectes Isabelle
Buzzo et Jean-Philippe Spinelli qui ont fondé ensemble le bureau Buzzo Spinelli
Architecture en 2014 ont pu, au cours d’environ sept années écoulées depuis
l’obtention de leurs diplômes d’architecture à l’École Nationale Supérieure d’Architecture
de Marseille (ENSA-M), se constituer un important portefeuille en dépit de leur
jeunesse.
Text | Texte: Michael Koller
Fotos | Photos: Serge Demailly
Pläne | Plans: Buzzo Spinelli
Architecture
![]() |
Grundriss Erdgeschoss und Querschnitt «Maison des Pêcheurs»
Plan rez-de-chaussée et Coupe transversale«Maison des Pêcheurs»
|
Maison
des Pêcheurs, eine Werkstatt für Fischer
Das
Korsische Architekturbüro Buzzo Spinelli erregte international Aufsehen durch
die 2016 fertiggestellten «Maisons des Pêcheurs» in Bonifacio, der Heimatstadt
von Isabelle Buzzo, am äussersten Südzipfel Korsikas.
Das
langgestreckte und schmale Bauwerk von 87 Metern Länge und einer
Nettogeschossfläche von nur 320 Quadratmetern folgt in mehreren Knicken der
Umrisslinie der Kalksteinwand des dahinterliegenden Felsabsturzes. In den vier
orthogonalen Bauvolumen aus Sichtbeton sind 20 einfache Lager- und
Werkstatträume von jeweils 10 Quadratmetern für die Fischer der Stadt
untergebracht. Ein weit auskragendes und Schatten spendendes Dach fasst
einzelne Bauvolumen optisch zu einem Gebäude zusammen. Das Dach wurde von den
Architekten als teils begrünte, öffentlich zugängliche Promenade entworfen. Der
Korsische Ausdruck «L’Ortu Duzzi» referiert auf den Garten, der sich
ursprünglich an dieser Stelle befand. Die Dachpromenade ist über zwei offen
geführte Treppen erreichbar, die in zwei Gebäudedurchbrüchen situiert sind. Die
mittlere Gebäudeöffnung ist als schattiger Platz gestaltet, wobei ein
rechteckiger Deckendurchbruch eine visuelle Verbindung zwischen der Promenade
und dem Erdgeschoss herstellt.
Die
dreiseitig geschlossenen und zur Hafenpromenade hin geöffneten, zellenartigen
Räume können mit geschosshohen Glastüren und Fixverglasungen sowie den
aussenliegenden dreiteiligen Schiebetüren geschlossen werden.
Mittels
der sägerauen Brettschalung für die Ortbetonwände wollten Buzzo und Spinelli
die horizontalen Kalksteinschichten der steil abfallenden Küsten in Erinnerung
rufen. Die rötlich-braunen Niangon-Holzlamellen sind eine Referenz an das Holz,
das traditionell im Schiffsbau verwendet wird.
Maison
des Pêcheurs, un atelier pour pêcheurs
Le
bureau d’architecture corse Buzzo Spinelli Architecture a fait sensation au
niveau international avec les «maisons des pêcheurs» de Bonifacio, achevées en
2016 dans la ville natale d’Isabelle Buzzo, à l’extrême pointe sud de la Corse.
Ce
bâtiment étroit et tout en longueur, de 87 mètres de long et d’une surface
nette de plancher de seulement 320 mètres carrés, suit, avec plusieurs coudes,
les lignes de contour de la paroi calcaire de la falaise rocheuse située
derrière. Les quatre volumes de construction orthogonaux en béton apparent
abritent 20 espaces de stockage et ateliers tout simples de 10 mètres carrés
chacun pour les pêcheurs de la ville. Un toit débordant largement qui donne de
l’ombre réunit, sur le plan visuel, les différents volumes en un bâtiment. Le
toit, qui est partiellement végétalisé, a été conçu par les architectes comme
une promenade accessible au public. L’expression corse «L’Ortu Duzzi » fait
référence au jardin qui se trouvait initialement à cet endroit. La promenade de
toit est accessible par deux escaliers à ciel ouvert qui sont situés dans deux
percées de bâtiment. L’ouverture centrale du bâtiment est agencée en place
ombragée; une traversée de plafond rectangulaire crée un lien visuel entre la
promenade et le rez-dechaussée.
Les
pièces de type alvéolaire, fermées sur trois côtés et ouvertes vers la
promenade du port, peuvent être fermées par des portes en verre et des vitrages
fixes de la hauteur du plafond ainsi que par des portes coulissantes en trois
parties situées à l’extérieur.
Avec
le coffrage en bois brut de sciage pour les murs en béton coulé sur place,
Isabelle Buzzo et Jean-Philippe Spinelli voulaient rappeler les strates de
calcaire des côtes escarpées. Les lamelles en bois niangon de couleur
brun-rouge sont une référence au bois qui est utilisé de manière traditionnelle
pour la construction navale.
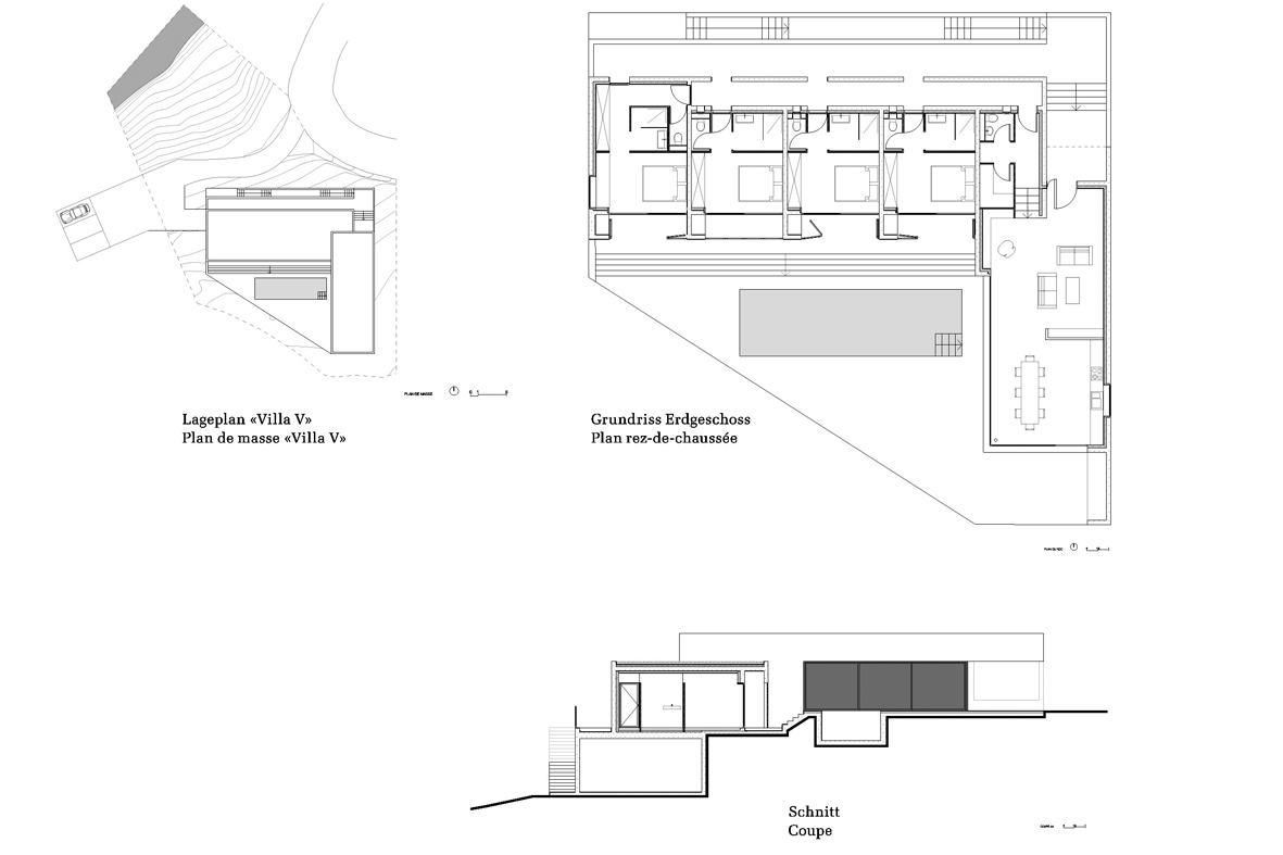
Villa V, eine Referenz an die südfranzösische Klosterarchitektur
Bereits
am Ort vorhandene Materialien zu verwenden, kennzeichnet die Projekte von Buzzo
und Spinelli. Damit verwurzeln sie jedes Bauwerk mit seiner Umgebung. Der
starke Bezug zur Landschaft beruht, nach Ansicht der Architekten, auf der
aussergewöhnlichen Natur Korsikas. Auf relativ engem Raum finden sich eine
Vielzahl an Tieren und Pflanzen, unterschiedliche Mikroklimas und
verschiedenartige Gesteinsformationen und -arten. Diese Vielfalt sowie die
abwechslungsreiche Topografie beeinflussen die Architektur und die Menschen Korsikas
seit jeher.
Entsprechend
der spezifischen, örtlichen Rahmenbedingungen verändern sich auch die Entwürfe
und die Materialverwendung der einzelnen Projekte von Buzzo Spinelli. Während
sie für die Villa V in Oletta sandgestrahlten Beton mit weissem Schotter als
Referenz an die lokalen Sandsteinvorkommen verwendeten, kam bei der Villa A in
Pietralba Granit für die Fassaden und Tuffstein für das Dach zum Einsatz.
Die
leicht erhöht gelegene Villa V präsentiert sich mit seiner beinah völlig
geschlossenen West-, Ost- und Nordfassade als massives Bauwerk. Wie Jean-Philippe
Spinelli betont, liegt dem Gebäude ein Konzept zugrunde, das an einen
monolithischen Steinblock erinnern soll, der durch einen Bildhauer ausgehöhlt
wurde. Der Bildhauer ist in diesem Falle mit dem Sonnenlicht gleichzusetzen.
Der
nordseitig gelegene und den Zimmern vorgelagerte Arkadengang bekundet das
Interesse der Architekten an der Klosterarchitektur Südfrankreichs. Die zum
Swimmingpool hin orientierte Südfassade wurde hingegen weitestgehend
aufgerissen. Die Glasfront des Wohn- und Esszimmers ist wieder unter einen
breiten Dachvorsprung zurückversetzt, die raumhohen Glasschiebetüren der
Schlafzimmer sind in schattenbildende Nischen zurückversetzt und werden
zusätzlich durch Holzfalttüren vor Überhitzung geschützt.
![]() |
Lageplan «Villa V» - Plan de masse «Villa V»
Grundriss Erdgeschoss - Plan rez-de-chaussée
Schnitt - Coupe
|
Villa
V, une référence à l’architecture monastique du sud de la France
Le
fait d’utiliser des matériaux qui existent déjà sur place caractérise les
projets de Buzzo Spinelli Architecture. C’est ainsi qu’ils enracinent chaque
ouvrage dans son environnement. Selon les architectes, la relation forte avec
le paysage repose sur la nature exceptionnelle de la Corse. On y trouve, sur un
espace relativement restreint, une multitude d’animaux et de plantes,
différents microclimats et une grande variété de formations rocheuses et de
types de roche. Cette diversité ainsi que la topographie diversifiée ont depuis
toujours eu une influence sur l’architecture et les habitants de la Corse.
Les
conceptions et l’utilisation des matériaux pour les différents projets de Buzzo
Spinelli Architecture varient tout autant selon les conditions-cadres locales
spécifiques. Tandis qu’ils ont utilisé du béton sablé avec du gravier blanc
pour la Villa V d’Oletta comme référence aux gisements de grès locaux, pour la
Villa A à Pietralba, ils choisirent le granit pour les façades et du tuf pour
le toit.
La
Villa V, située un peu en surplomb, se présente, avec sa façade ouest, est et
nord quasiment entièrement fermée, comme un ouvrage massif. Comme le souligne
Jean-Philippe Spinelli, ce bâtiment est basé sur un concept qui est censé
rappeler un bloc de pierre monolithique qui a été creusé par un sculpteur. Dans
ce cas, le sculpteur peut être assimilé à la lumière du soleil.
Les
arcades situées sur le côté nord et devant les pièces témoignent de l’intérêt
porté par les architectes à l’architecture monastique du sud de la France. Par
contre, la plus grande partie de la façade sud orientée vers la piscine a été
démolie. La façade vitrée de la salle de séjour et à manger est à nouveau en
retrait sous un large débord du toit, les portes coulissantes vitrées de la
hauteur des chambres sont renfoncées dans des niches qui donnent de l’ombre et
sont en plus protégées des excès de chaleur par des portes pliantes en bois.
Raumprogramme
hinterfragen
Ihre
wichtigste Aufgabe als Architekten sehen Buzzo und Spinelli im genauen
inhaltlichen Analysieren und Hinterfrage der Raumprogramme, sowohl für
öffentliche als auch private Auftraggeber. Nur so kann es ihrer Meinung nach
gelingen, den Projekten einen Mehrwert zu geben und sie noch spezieller und
spezifischer zu machen. Das gelang ihnen durch den Entwurf der Dachterrasse und
der Hafenpromenade, sowie dem Hinzufügen des Sitzungsraumes und der Büroräume
bei der Maison des Pêcheurs. Bei anderen Projekten wie der Villa V, gelingt
dies durch die Materialverwendungen und Bautechniken, die sie zusammen mit den
lokalen Baufirmen erarbeiten, obwohl dies oftmals eine grosse Herausforderung
darstellt.
Buzzo
Spinellis Ziel ist, die Erfahrung aus Korsika für zukünftige Projekte auf den
französischen Kontinent mitzunehmen und so auch der mitunter beengenden,
familiären, wenngleich sehr sonnigen Arbeitsumgebung der Insel zu entkommen.
Questionner
les programmes d’aménagement
Isabelle
Buzzo et Jean-Philippe Spinelli considèrent que leur tâche la plus importante,
en tant qu’architectes, est l’analyse précise du fond et le questionnement des
programmes d’aménagement pour les mandants publics aussi bien que privés. Selon
eux, c’est la seule façon de donner une plus-value aux projets et de les rendre
encore plus distinctifs et plus spécifiques. Ils y sont arrivés par la
conception de la terrasse de toit et de la promenade du port ainsi qu’avec
l’ajout de la salle de réunion et des bureaux pour la Maison des Pêcheurs. Pour
d’autres projets comme celui de la Villa V, ils y sont parvenus avec les
matériaux utilisés et les techniques de construction élaborées ensemble avec
les entreprises de construction locales bien que ceci constitue souvent un défi
majeur.
L’objectif
de Buzzo Spinelli Architecture est d’emporter l’expérience acquise en Corse
pour des projets futurs sur le continent français et d’échapper ainsi à
l’environnement de travail familial, parfois confiné, quoique très ensoleillé
de l’île.
Viso
Buzzo Spinelli Architecture
Viso
Buzzo Spinelli Architecture






