FORUM 05/2015 - BAUEN – ENSA, Nancy/FR
Zwei ungleiche Geschwister -
Kunsthochschule
Nancy, Frankreich
2010 konnten Dietrich | Untertrifaller
Architekten zusammen mit Atelier d’Architecture Christian Zoméno den
zweistufigen anonymen Wettbewerb für die neue Kunsthochschule von Nancy für
sich entscheiden. Die École Nationale Supérieure d’Art de Nancy (Ensan) ist
Teil des Universitätscampus Artem, zu dem nach seiner endgültigen
Fertigstellung neben der Kunsthochschule auch noch eine Hochschule für Technik
sowie eine Hochschule für Wirtschaftsmanagement gehören wird.
Text Michael Koller
Artem (Art, Technologie, Management) ist mit den zugehörigen Bauten Ensan, der École des Mines, der ICN Business School Nancy-Metz, dem Institut Jean Lamour, der Maison des Langues und einer Mediathek der zurzeit größte Universitätsneubaukomplex Frankreichs.
Beim städtebaulichen Wettbewerb zur Planung des ehemaligen
Kasernengeländes konnte sich der französische Architekt und Städteplaner
Nicolas Michelin 2005 gegenüber seinen vier Konkurrenten – Rem Koolhaas / OMA,
Herzog & de Meuron, Dominique Perrault Architecture und Henri Ciriani – mit
einem Konzept durchsetzen, das vor allem durch eine doppelgeschoßige, verglaste
Galerie, die den eigentlichen Universitätsbauten vorgelagert ist, durchsetzen.
Diese Galerie mit ihrem gefalteten Glasdach aus rosaroten und hellblauen
Glaspaneelen stellt die symbolische, physische, funktionelle, aber auch
ästhetische Verbindung der drei Hochschulen und deren Architekturen dar und
bildet gleichzeitig einen gemeinschaftlich nutzbaren und transparenten Übergang
zwischen dem Universitätscampus und der umliegenden Stadt.
Dietrich Untertrifaller und Christian Zoméno, die 2005 ebenfalls gemeinsam
am Städtebauwettbewerb teilnahmen, war aber als Sechstgereihte die Teilnahme an
der zweiten Phase des geladenen Wettbewerbs verwehrt. Die Kandidatur der beiden
Büros erweckte bei der lokalen und regionalen Politik nicht zuletzt aufgrund
des internationalen Bekanntheitsgrades der architektonischen, technischen und
umwelttechnischen Qualitäten der Vorarlberger Architektur großes Interesse.
2010 beschlossen die beiden Büros, am Wettbewerb für die École Nationale Supérieure
d’Art teilzunehmen, und gewannen.
ÜBERSICHTLICH ORGANISIERT
Die Jury zeigte sich von der Funktionalität und Klarheit der Grundrisse,
der allgemeinen Organisation, der genauen Einhaltung des strengen,
städtebaulichen Bebauungsplans und der Detaillierung des vorgestellten Projekts
beeindruckt. Der Komplex bildet den nördlichen Abschluss des Universitätscampus
und steht an der Kreuzung von Rue Vauban und Rue Sergent Blandan, womit er eine
Schlüsselposition zwischen der Stadt und dem neuen Campusgelände einnimmt. Die
Kunsthochschule ist am Ende der Galerie situiert, wobei sich zwischen dem Straßengebäude
und dem Eingang der Galerie ein kleiner Vorplatz bildet. Der Hauptzugang
erfolgt auch bei diesem Universitätsgebäude über die Galerie.
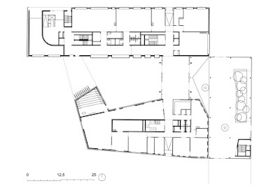
Bereits beim Betreten des Baus wird die Organisation deutlich: Das
viergeschoßige „bâtiment Vauban“ an der Nordwestseite und die fünfgeschoßige
„maison-signe“ an der Südostseite wurden auf einer sich über sämtliche
Universitätsgebäude erstreckenden eingeschoßigen Tiefgarage errichtet. Zusammen
mit den beiden Brückenbauten, die sie miteinander verbinden, umschließen sie
den Innenhof der Kunsthochschule. In dem zwei Geschoße umfassenden und zum Teil
vom Boden abgehobenen Verbindungsbau an der Innenhofrückseite ist ein Hörsaal untergebracht.
| Die Straßenfassade an der Rue Sergent Blandan © Dietrich | Untertrifaller Architekten |
Im Verbindungsgebäude an der Galerieseite ist die doppelgeschoßige Eingangshalle
mit einer Brücke situiert, die die beiden ersten Geschoße miteinander
verbindet. In der Ausschreibung wurden Ausstellungsflächen mit einer Raumhöhe
von 4,50 Meter gefordert, die im Erdgeschoß der „maison-signe“ untergebracht
sind. Die Holz- und Stahlbauwerkstätten des Erdgeschoßes im „bâtiment Vauban“
hingegen besitzen nur eine Raumhöhe von vier Meter. Aufgrund dieses
Höhenunterschieds der Decken ist die Verbindungsbrücke leicht geneigt.
Über der Eingangshalle befinden sich noch zwei weitere Geschoße. Der
Innenhof mit seinem Waschbetonbelag wird klar umschlossen, wirkt aber durch die
gebäudehohe, galerieseitige Glasfassade und den Durchgang zum gemeinschaftlich
benutzbaren Park an der Rückseite der Kunsthochschule dennoch offen. Im Gebäude
Vauban sind Werkstätten untergebracht, während das höhere Signalgebäude in
erster Linie der Verwaltung vorbehalten ist. Aufgrund des hinzugefügten
Raumprogramms wurden aber auch dort im Zuge der Planung die Ausstellungsräumlichkeiten
im Erdgeschoß und ein zusätzliches Siebdruckatelier in doppelter Geschoßhöhe
unter dem Dach hinzugefügt.
| Die Verbindungsbrücke in der doppelgeschoßigen Eingangshalle © Dietrich | Untertrifaller Architekten |
EIN UNGLEICHES PAAR
Die beiden Baukörper unterscheiden sich äußerlich grundsätzlich voneinander:
das mehrfach abgekantete Volumen der „maison-signe“ wird vollständig in eine
Lochblechfassade aus braun-schwarzem, mit geraden Flanken gekantetem,
eloxiertem Aluminium (E6C34) eingehüllt wie auch das Dach, das damit, wie schon
bei den Gebäuden von Nicolas Michelin, zur fünften Fassade mutiert. Die
straßenseitigen Fenster wurden von Geschoß zu Geschoß leicht versetzt
angeordnet. Die Ordnung und die Größen der Fenster verändern sich zunehmend und
werden immer freier, je weiter man sich dem begrünten Park des Campus an der
Rückseite des Komplexes nähert.
Das quaderförmige Volumen der Werkstätten ist als Gegengewicht zu
Formenvielfalt und Farbexplosion der Gebäude Michelins mit „Rieder Liquide
Black Ferro“-Fassadenplatten bedeckt und zeichnet sich durch großformatige,
linear angeordnete Fenster aus.
Trotz ihrer äußerlichen Verschiedenartigkeit ist die Tragstruktur der
beide Gebäude ident: Rund um einen Stahlbetonkern aus Sichtbeton, der alle
vertikalen Erschließungen, die Toilettenanlagen und technischen Einrichtungen
aufnimmt, liegen die frei überspannten Werkstattplateaus, die in
unterschiedlichster Weise mittels einfacher Gipskartonwände unterteilt werden.
Die hofseitigen Erschließungsgänge wurden bewusst nicht als Gänge oder enge
Schläuche konzipiert, sondern als lichtdurchflutete, helle Aufenthaltsräume,
die auch für Ausstellungen adaptiert werden können. Sie öffnen sich mit großen Fenstern
zum Innenhof und schaffen damit eine starke visuelle Beziehung zwischen innen
und außen.
EINFACHHEIT INNEN WIE AUSSEN
Auch die Disposition der Räume und deren Materialität sind einfach und
klar und beschränkt sich auf wenige, für die Funktionen adäquate Materialien.
In der Regel sind alle Betonwände, also alle Außenwände sowie die Wände in und
um den Erschließungskern, aus Sichtbeton. Nur die leichten Trennwände sowie die
Wände der Ausstellungsräume bestehen aus weißgestrichenem Gipskarton. Alle
Böden werden in Beton ausgeführt, nur die Büroräume erhalten einen
Eichenindustrieparkett. Die Decken sind bis auf wenige Ausnahmen wie die
abgehängten, gelochten und weißen Gipskartondecken in den Büros zur Schallabsorbierung
mit Holzwolleplatten (Organic Minéral Pure von Knauf) bedeckt. Eine Ausnahme
bilden auch die abgehängten Streckmetalldecken in der Eingangshalle, im
obersten Geschoß der „maison-signe“ sowie im Auditorium.
Als Anknüpfungspunkt zur Farbenvielfalt der Gebäude von Nicolas
Michelin, aber auch aus akustischen Gründen haben die Architekten bunte
Filzvorhänge an den großformatigen Fenstern des nordseitig gelegenen „bâtiment
Vauban“ vorgesehen, während das südseitige Signalgebäude bunte, außenliegende Markisen
besitzt. Die ästhetische Wahl roh belassener Raumoberflächen entspricht sehr
gut der Nutzung als Werkstätten. Projektleiter Andreas Laimer erklärt, dass ein
Holzbau – eine Konstruktionsmethode, die man vielleicht als Erstes mit einem Vorarlberger
Architekturbüro verbinden würde – in diesem Zusammenhang unpassend gewesen
wäre. Er betont, dass die Gebäude außen wie innen eine unmittelbar spürbare
Materialität aufweisen und die Konstellation wie auch die Verschiedenartigkeit
der beiden markanten Gebäudevolumina eine interessante und gute Spannung
erzeugen.
| Die Werkstätten im nordwestseitigen „bâtiment Vauban“ © Dietrich | Untertrifaller Architekten |
SCHLÜSSEL FÜR GUTE ZUSAMMENARBEIT
Die Bekanntschaft und Zusammenarbeit der beiden Büros geht auf einen
Vortrag der Architekten Dietrich Untertrifaller an der École nationale
supérieure d’architecture in Nancy und die Besichtigung verschiedener Bauten
des Vorarlberger Büros im Rahmen einer Studienreise der Franzosen zurück.
Dietrich Untertrifaller sind bei dieser österreichisch-französischen
Zusammenarbeit für die Planung und die künstlerische Oberleitung, das Büro
Christian Zoméno als lokale Architekten für die Planungsabstimmungen vor Ort
und die örtliche Bauaufsicht verantwortlich. Die Ausführung der Gebäude in
Sichtbeton wird laut der beiden Projektleiter Andreas Laimer von Dietrich
Untertrifaller und Dimitri Grzanka vom Atelier Christian Zoméno durch zweierlei
Gründe erschwert: Zum einen gibt es traditionsgemäß in Frankreich kaum
Erfahrung mit dem Bauen in Sichtbeton, was alle beteiligten Instanzen
miteinschließt, die ausführenden Baufirmen ebenso wie die Haustechnikfirmen,
die es nicht gewohnt sind, bei ihren Installationen darauf achten zu müssen,
dass keine Verkleidungen oder Beschichtungen nachfolgen. Zum anderen führte der
prinzipielle Widerstand Michelins gegen Sichtbeton zu zahlreichen
Modifikationen und Umplanungen der Fassaden des „bâtiment Vauban“, das
ursprünglich mit Betonfertigteilverkleidung geplant war. Die Kooperation der
beiden Büros funktioniert deshalb sehr gut, weil es zwischen ihnen keines hohen
Erklärungsaufwandes bedarf, in gestalterischer wie in technischer Hinsicht, und
sich die hohen Ansprüche beider Architekturbüros miteinander decken. So können
Entscheidungen schnell und mit großer Übereinstimmung getroffen werden.
| Die Rückseite des Komplexes © Dietrich | Untertrifaller Architekten |
STARKES GRUNDKONZEPT
Das Projekt musste aufgrund der finanziellen Vorgaben, etlicher
Abänderungen des Raumprogramms und des strengen städtebaulichen und
architektonischen Korsetts von Nicolas Michelin mehrmals angepasst werden. Das
klare und starke Grundkonzept und die intensive Zusammenarbeit zwischen Planern
und Nutzern führten schließlich zu einer Optimierung von Funktionalität und
Raumorganisation im Rahmen des vorhandenen Budgets. Die Kraft des Projekts
liegt darin, dass es die Architekten geschafft haben, der Kunsthochschule trotz
der stark einschränkenden städtebaulichen Vorgaben bezüglich der
Gebäudeabmessungen und -konturen sowie der Fassadengestaltungen einen markanten
und eigenständigen architektonischen Charakter zu verleihen.
![]() |
| Grundriss Erdgeschoss |
ARCHITEKTEN
Ensan: Dietrich | Untertrifaller Architekten ZT GmbH, Atelier d’Architecture Christian Zoméno
Ensan: Dietrich | Untertrifaller Architekten ZT GmbH, Atelier d’Architecture Christian Zoméno
Artem Nancy: Agence Nicolas Michelin & Associés (www.anma.fr)
École des Mines, Institut Jean Lamour, Maison des Langues: Agence Nicolas Michelin & Associés (www.anma.fr)
ICN Busines School pour le Management, Médiathèque: Lipsky + Rollet Architectes (www.lipsky-rollet.com)
PROJEKTDATEN
PROJEKTDATEN
Neubau der École Nationale Supérieure
d’Art de Nancy / Kunsthochschule Nancy (F)
Auftraggeber: Stadtgemeinde Nancy
Architektur Dietrich | Untertrifaller Architekten ZT
GmbH mit Atelier d’Architecture Christian Zoméno
Statik,
Haustechnik, Elektroplanung, Bauphysik: Artelia, Straßburg
Akustikplanung: Venathec
Baumeister: Cari Fayat
Grundstücksfläche: 3.172 m²
Bebaute Fläche: 3.110 m²
Bruttogeschoßfläche: 13.580 m²
Nutzfläche: 8.591,15 m²
Baubeginn: September 2013
Fertigstellung: Jänner 2016


