SBD 02-2018 – THEMA / THÈME – Hostel Wadi, Kasterlee/BE
SCHLAFEN IM WALD I DORMIR DANS LA FÔRET
Kreist man im Vogelflug über das rund 300 Hektar grosse,
ehemalige britische Militärterrain « De Hoge Rielen » bei Kasterlee im Osten von Antwerpen, lässt sich
das kreisrunde Hostel Wadi mit seinem Gründach zwischen den Baumkronen kaum
ausmachen. Das Wort «Wadi» verweist auf ein zentral gelegenes Regenwassersammelbecken. Die meist mit Gras oder Ried bewachsenen Senken besitzen meist eine wasserdurchlässige Erdschicht, in der das Regenwasser gut in den Boden sickern kann. Gleichzeitig dient ein Wadi als Regenwasserrückhaltebecken.
Quand on survole les quelques 300 hectares de l’ancien
terrain militaire britannique «De Hoge Rielen» à Kasterlee à l’est d’Anvers,
c’est à peine si l’on repère la forme ronde de l’auberge Wadi avec son toit
végétalisé entre les cimes des arbres. Le mot «Wadi» fait référence à un bassin de récupération d’eau de pluie occupant une position centrale. Les dépressions du terrain recouvertes majoritairement d’herbe ou de roseaux possèdent le plus souvent une couche de terre perméable à l’eau dans laquelle l’eau de pluie peut s’infiltrer aisément dans le sol. Dans le même temps, un Wadi sert de bassin de retenue de l’eau de pluie.
Text I Texte: Michael Koller
Fotos I Photos: Frederik Buyckx
Pläne | Plans: Studio Bernardo Secchi und Paola Viganò
Die Geburt eines Landschafts- und Architekturprojekts
2002 wurde das Mailänder Architektur- und Städtebaubüro
« Studio Bernardo Secchi & Paola Viganò » von Bob Van Reeth, dem Architekten
der flämischen Landesregierung (Vlaamse Bouwmeester), zum Entwurf eines
Masterplans für das öffentliche Bildungs- und Freizeitgebiet « De Hoge Rielen »
eingeladen.
Der Wettbewerb, den das Büro für sich entscheiden konnte, diente der Entwicklung einer globalen Vision für das Gebiet, das grösstenteils von Wald bedeckt ist und das sowohl auf lokaler, als auch territorialer Eben eine grosse Bedeutung besitzt. Das militärische Übungsgebiet wurde 1974 von der flämischen Regierung gekauft und zu einem Erholungs- und Bildungszentrum umgewandelt, in dem in erster Linie Kinder und Jugendliche auf spielerische Weise soziale Fähigkeiten erlernen und die Natur erforschen können.
Der von Bernardo Secchi und Paola Viganò präsentierte Entwurf sah die Entwicklung einer Anzahl öffentlich zugänglicher und gemeinschaftlich nutzbarer Bauwerke entlang der Hauptzufahrtsstrassen, dem sogenannten « Contact Strip » vor. Die Molenstraat und die Hoge-Rielen-Strasse bilden das Rückgrat des Masterplans, von dem aus eine Vielzahl von Fusswegen und Zufahrtsstrassen die rund 60 ehemaligen Militärbaracken, die über das gesamte Areal verstreut sind, netzartig miteinander verbinden und erschliessen.
Für Paola Viganò war es entscheidend, durch gezielte und punktuelle architektonische und landschaftsgestalterische Eingriffe eine starke, kohärente Verbindung zwischen den drei Grundelementen des Ortes zu schaffen: der vorhandenen Naturlandschaft, der Nutzung der ehemaligen militärischen Einrichtungen und der Schaffung einer Bildungsstätte, an dem Seminare aller Art abgehalten und organisiert werden konnten.
Im Zuge der Erforschung dieses ehemaligen militärischen Übungsgebiets stellten die Architekten fest, dass sie es bei dieser scheinbaren Naturlandschaft mit einer strategisch angelegten und gemäss den militärischen Anforderungen modellierten Kunstlandschaft zu tun hatten. Nicht nur Strassen, Böschungen, Dämme, Brachflächen oder Waldlichtungen und Bodensenken waren genau geplant, sondern auch der gesamte Baumbestand des Waldes war künstlich angelegt. Die in der Region nicht heimischen, hohen Kiefern schufen einen Wald, in dem das Sonnenlicht bis zum Boden durchdringt. Durch die hohen Stämme und das Fehlen von Ästen und Blättern im Bodenbereich erhielt der Wald eine Durchlässigkeit und Transparenz, die den Charakter des Ortes kennzeichnen und ihn für die Planer einzigartig machen.
Der von Bernardo Secchi und Paola Viganò präsentierte Entwurf sah die Entwicklung einer Anzahl öffentlich zugänglicher und gemeinschaftlich nutzbarer Bauwerke entlang der Hauptzufahrtsstrassen, dem sogenannten « Contact Strip » vor. Die Molenstraat und die Hoge-Rielen-Strasse bilden das Rückgrat des Masterplans, von dem aus eine Vielzahl von Fusswegen und Zufahrtsstrassen die rund 60 ehemaligen Militärbaracken, die über das gesamte Areal verstreut sind, netzartig miteinander verbinden und erschliessen.
Für Paola Viganò war es entscheidend, durch gezielte und punktuelle architektonische und landschaftsgestalterische Eingriffe eine starke, kohärente Verbindung zwischen den drei Grundelementen des Ortes zu schaffen: der vorhandenen Naturlandschaft, der Nutzung der ehemaligen militärischen Einrichtungen und der Schaffung einer Bildungsstätte, an dem Seminare aller Art abgehalten und organisiert werden konnten.
Im Zuge der Erforschung dieses ehemaligen militärischen Übungsgebiets stellten die Architekten fest, dass sie es bei dieser scheinbaren Naturlandschaft mit einer strategisch angelegten und gemäss den militärischen Anforderungen modellierten Kunstlandschaft zu tun hatten. Nicht nur Strassen, Böschungen, Dämme, Brachflächen oder Waldlichtungen und Bodensenken waren genau geplant, sondern auch der gesamte Baumbestand des Waldes war künstlich angelegt. Die in der Region nicht heimischen, hohen Kiefern schufen einen Wald, in dem das Sonnenlicht bis zum Boden durchdringt. Durch die hohen Stämme und das Fehlen von Ästen und Blättern im Bodenbereich erhielt der Wald eine Durchlässigkeit und Transparenz, die den Charakter des Ortes kennzeichnen und ihn für die Planer einzigartig machen.
Naissance d’un projet architectural et paysager
En 2002, le « Studio Associato Bernardo Secchi Paola
Viganò », un cabinet milanais d’architecture et d’urbanisme, a été invité par
Bob Van Reeth, l’architecte du gouvernement flamand (Vlaamse Bouwmeester), à élaborer
un plan directeur destiné au site public pédagogique et de loisirs « De Hoge Rielen ».
Le concours, remporté par le cabinet, visait à développer
une vision globale concernant le domaine qui est en majeure partie recouvert d’une
forêt et revêt une grande importance tant au niveau local qu’au niveau
territorial. Le terrain d’entraînement militaire a été acheté en 1974 par le
gouvernement flamand et transformé en centre récréatif et pédagogique dans lequel
principalement des enfants et des jeunes peuvent de façon ludique développer
des capacités relationnelles et explorer la nature.
Le projet présenté par Bernardo Secchi et Paola Viganò prévoyait
le développement d’un certain nombre de bâtiments accessibles au public et
utilisables de façon commune le long des principales voies d’accès, ce qu’on
appelle le « contact strip ». La Molenstraat et la rue Hoge-Rielen forment
l’épine dorsale du plan directeur à partir de laquelle une multiplicité de
chemins pédestres et de voies d’accès desservent et raccordent entre eux en
forme de réseau les quelque 60 anciens baraquements militaires qui sont
répartis sur la totalité du domaine.
Pour Paola Viganò, il était déterminant de créer, par des
interventions architecturales et paysagères ciblées et ponctuelles, une liaison
forte et cohérente entre les trois éléments fondamentaux du lieu: le paysage
naturel existant, l’utilisation des anciens aménagements militaires et la
création d’un lieu de formation permettant de recevoir et d’organiser des
séminaires de toutes sortes.
Au cours de l’exploration de cet ancien terrain
d’entraînement militaire, les architectes ont constaté que, avec ce paysage apparemment
naturel, ils avaient affaire à un paysage artificiel conçu sous un angle
stratégique et modelé selon des impératifs militaires. Non seulement les rues,
les talus, les digues, les friches ou les clairières et les dépressions du
terrain étaient planifiés avec soin, mais le peuplement en arbres de la forêt
résultait lui aussi intégralement d’une conception artificielle. Les hauts pins
non indigènes ont créé une forêt dans laquelle la lumière parvient jusqu’au
sol. Les troncs élevés et l’absence de branches et de feuilles au niveau du sol
confèrent à la forêt une lumière et une transparence qui donnent son caractère
au lieu et le rendent unique aux yeux des planificateurs.
Ein ungewöhnlicher Entwurf
Der Grossteil der ursprünglichen Militärbaracken wurde
schon vor der Intervention von Studio Bernardo Secchi & Paola Viganò zu
Gemeinschaftsherbergen umgebaut und ähnelt den für Belgien typischen « Fermettes »,
also bauernhofartigen Wohngebäuden. Das Hostel Wadi, das in unmittelbarer Nähe
zur nördlichen Zufahrtsstrasse liegt, ist als eine Ergänzung hierzu gedacht. Der
Grundriss und die Organisation der Schlafräume ist so entworfen, dass darin
sowohl Schul- und Jugendgruppen, Studenten, soziale und kulturelle
Vereinigungen, Familien und Fahrradtouristen als auch individuelle Besucher
Unterkunft finden. Der Versuch, die bestehende Natur mit der militärischen
Nutzung der Vergangenheit und den gemeinschaftlichen Anliegen der Nutzer in
Verbindung zu bringen, drückt sich in vielerlei Hinsicht auch in der
Architektur und der Materialverwendung beim Hostel Wadi aus.
Die kreisrunde Form entstand in einem sehr frühen Entwurfsstadium, als das Gebäude noch um den nahegelegenen Weiher hätte errichtet werden sollen. Um die dort im Entstehen beginnende Fauna und Flora zu schützen, entschied man sich, das Gebäude zu verlegen. Die Form und die Materialverwendung blieben. Anstatt eines Wasserbassins umschliesst das Gebäude heute einen kleinen Kiefernwald, ein Relikt des ursprünglich künstlich gepflanzten und sukzessive überwachsenen Baumbestands.
Die Architekten sehen ihr Gebäude gleichermassen als Filter und schützenden Ring, der den wild wachsenden Garten mit den hohen Kiefernbäumen in seiner Mitte gegen die immer stärker überhandnehmende, lokale Vegetation an der Aussenseite der Anlage abschirmt. Diese Entwurfsidee drückt sich auch in der Materialverwendung aus: nach Aussen wirkt das Bauwerk durch die dicke und mit europäischem Lärchenholz verkleidete dunkle Fassade kompakt und geschlossen, trotz der grosszügigen Fensteröffnungen der Schlafräume. Im Gegenzug dazu zieht die rundumverglaste Innenfassade den Blick der Besucher geradezu in den Garten, der als gemeinschaftlich nutzbarer, aber nicht bebauter Aussenraum fungiert. Die Glasfassaden und die hohen, im Bodenbereich ast- und blattlosen Kiefern erlauben ausserdem Blickbeziehungen zwischen den Gästen in den unterschiedlichen Gebäudeteilen. Die drei Durchgänge – überdachte Plätze – machen das Bauwerk wiederum durchlässig und verbinden es mit seiner Umgebung.
Paola Viganò sieht das Hostel Wadi und die gesamte Anlage als ideologisches Projekt, bei dem es darum geht, das Individuum mit der Gemeinschaft zu verbinden, die Natur mit dem Gebautem und die Geschichte mit der Gegenwart. Die räumliche Organisation und Vielfältigkeit der Gesamtanlage und all ihrer Einzelelemente erlaubt es, den Erwartungen der Betreiber und den Verhaltensweisen der unterschiedlichen Nutzer gerecht zu werden.
Die Architekten sehen ihr Gebäude gleichermassen als Filter und schützenden Ring, der den wild wachsenden Garten mit den hohen Kiefernbäumen in seiner Mitte gegen die immer stärker überhandnehmende, lokale Vegetation an der Aussenseite der Anlage abschirmt. Diese Entwurfsidee drückt sich auch in der Materialverwendung aus: nach Aussen wirkt das Bauwerk durch die dicke und mit europäischem Lärchenholz verkleidete dunkle Fassade kompakt und geschlossen, trotz der grosszügigen Fensteröffnungen der Schlafräume. Im Gegenzug dazu zieht die rundumverglaste Innenfassade den Blick der Besucher geradezu in den Garten, der als gemeinschaftlich nutzbarer, aber nicht bebauter Aussenraum fungiert. Die Glasfassaden und die hohen, im Bodenbereich ast- und blattlosen Kiefern erlauben ausserdem Blickbeziehungen zwischen den Gästen in den unterschiedlichen Gebäudeteilen. Die drei Durchgänge – überdachte Plätze – machen das Bauwerk wiederum durchlässig und verbinden es mit seiner Umgebung.
Paola Viganò sieht das Hostel Wadi und die gesamte Anlage als ideologisches Projekt, bei dem es darum geht, das Individuum mit der Gemeinschaft zu verbinden, die Natur mit dem Gebautem und die Geschichte mit der Gegenwart. Die räumliche Organisation und Vielfältigkeit der Gesamtanlage und all ihrer Einzelelemente erlaubt es, den Erwartungen der Betreiber und den Verhaltensweisen der unterschiedlichen Nutzer gerecht zu werden.
Un projet inhabituel
La majeure partie des baraquements militaires initiaux
avaient été transformés en auberges communautaires avant l’intervention du
«Studio Associato Bernardo Secchi Paola Viganò» et ressemblent aux «fermettes »
typiques en Belgique, à savoir des bâtiments d’habitation présentant l’aspect de
fermes. L’auberge Wadi, qui est située à proximité immédiate de la route
d’accès septentrionale, est conçue comme venant compléter ces éléments. Le plan
et l’organisation des chambres sont conçus de façon à accueillir aussi bien des
groupes scolaires et de jeunes, des étudiants, des organisations sociales et
culturelles, des familles et des cyclotouristes que des visiteurs individuels. La
tentative de réaliser un lien entre d’une part la nature existante et
l’utilisation militaire passée et d’autre part les préoccupations communautaires
des utilisateurs s’exprime par bien des aspects également dans l’architecture
et dans les matériaux utilisés dans l’auberge Wadi.
La forme circulaire est apparue à un stade très précoce
du projet lorsqu’il était encore prévu que le bâtiment soit érigé autour de
l’étang proche. Pour protéger la faune et la flore qui commençait à se
développer, il a été décidé de déplacer le bâtiment. La forme et l’utilisation
des matériaux ont été conservées. A la place d’un bassin d’eau, le bâtiment
entoure aujourd’hui un petit bois de pins, vestige du peuplement forestier planté
artificiellement au début et qui s’est développé progressivement.
Les architectes considèrent leur bâtiment à la fois comme
un filtre et comme un anneau de protection qui constitue un rempart entre le
jardin qui se développe de façon sauvage avec les hauts pins au milieu et la végétation
locale toujours plus envahissante sur le côté extérieur du site. Cette idée sous-tendant
le projet se manifeste également dans l’utilisation des matériaux: vers
l’extérieur, avec sa façade épaisse et sombre revêtue de bois de mélèze
européen, l’ouvrage présente un aspect compact et fermé, malgré les généreuses
ouvertures de fenêtres des chambres. En contrepartie, la façade intérieure
entièrement vitrée oriente le regard des visiteurs directement vers le jardin qui
fonctionne en tant qu’espace extérieur utilisable par tous mais non bâti. Les
façades en verre et les hauts pins sans branches ni feuilles au niveau du sol
permettent en outre des contacts visuels entre les hôtes dans les différentes
parties du bâtiment. Les trois passages – des places couvertes – assurent de
nouveau la transparence de l’ouvrage et relient ce dernier à son environnement.
Paola Viganò conçoit l’ensemble du site, mais également
l’auberge Wadi, comme un projet idéologique dans lequel il s’agit d’établir un
lien entre l’individu et la communauté, entre la nature et le bâti et entre
l’histoire et le présent. L’organisation de l’espace et la diversité du site
dans son ensemble et de tous ses éléments individuels permettent de répondre
aux attentes des exploitants et aux modes de comportement des différents
utilisateurs.
Eine ökologische Architekturlandschaft
Für Paola Viganò ist entscheidend, dass der Architekt und
Landschaftsplaner im Entwurf und der Ausarbeitung eines Projekts sowohl im
grossen Kontext, also in seiner Implementierung am Ort, als auch im Kleinen, also
in der Ausarbeitung der architektonischen und konstruktiven Details, eine grosse
Präzision und Genauigkeit an den Tag legt. Ein einprägendes Bauwerk entsteht ihrer
Meinung nach durch die Schaffung eines gut definierten und kalkulierten
Projekts, das im Besucher ein klares und prägnantes visuelles Bild erzeugt, das
auch das hinter der Entwurfsidee liegende Wissen über den Ort zum Ausdruck
bringt.
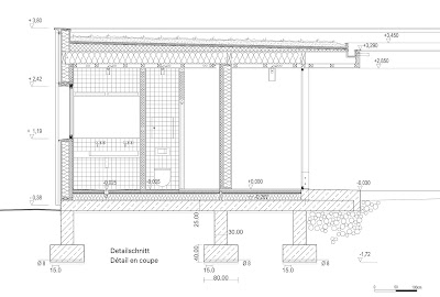
Die Idee, an diesem Ort ein ökologisches und nachhaltiges Bauwerk in Holzbauweise zu bauen, lag für Paola Viganò auf der Hand. Aufgrund des Kostendrucks, der zur Verfügung stehenden Baumethoden und der Ansprüche der Auftraggeber entschied man sich schliesslich für eine klassische Holzständerbauweise auf einer leicht vom Waldboden abgehobenen Betonplatte. Das Bauwerk besteht aus identisch aufgebauten, aneinandergereihten Zellen, wodurch sich zwischen den Schlafräumen isolierte Doppelwände ergaben.
Die Idee, an diesem Ort ein ökologisches und nachhaltiges Bauwerk in Holzbauweise zu bauen, lag für Paola Viganò auf der Hand. Aufgrund des Kostendrucks, der zur Verfügung stehenden Baumethoden und der Ansprüche der Auftraggeber entschied man sich schliesslich für eine klassische Holzständerbauweise auf einer leicht vom Waldboden abgehobenen Betonplatte. Das Bauwerk besteht aus identisch aufgebauten, aneinandergereihten Zellen, wodurch sich zwischen den Schlafräumen isolierte Doppelwände ergaben.
Um trotz der grossen, runden Gebäudeform den hohen Ansprüchen der Energieeffizienz und Nachhaltigkeit gerecht zu werden, wurden verschiedene Massnahmen ergriffen: Neben den gut isolierten Schlafräumen spielt der innenliegende, verglaste Gang – er wird von den Architekten auch als Wintergarten bezeichnet – zur passiven Wärmegewinnung durch die Sonneneinstrahlung während der Übergangszeiten eine wichtige Rolle. Die Dachüberstände beschatten die Glasscheiben gegenüber der hochstehenden Sommersonne und verhindern zusammen mit Bäumen eine Überhitzung des Gangs. Der Einfall der Wintersonne im Gangbereich wird dadurch allerdings nicht behindert. Die Masse des polierten und harzbeschichteten Holzbetonbodens dient im Winter als Wärmespeicher und kühlt das Bauwerk im Sommer. Das zehn Zentimeter dicke Gründach dämmt das Gebäude im Winter ebenfalls, während es im Sommer es das Gebäudeinnere kühl hält.
Die Architekten betonen, dass sie durch den Entwurf der Herberge die Geschichte des Ortes, die lokale Natur und das Funktionieren der gemeinschaftlichen Kultureinrichtungen in Belgien zu verstehen gelernt haben, und dass sie durch ihre architektonische und landschaftliche Intervention versuchen, diese Situation den Besuchern begreiflich zu machen.
Un paysage
architectural écologique
Pour Paola Viganò, il est essentiel que l’architecte et
le paysagiste fassent preuve d’une grande précision et exactitude dans la conception
et dans l’élaboration d’un projet aussi bien dans un contexte large, donc dans sa
mise en oeuvre sur place, que dans un contexte restreint, c’est-à-dire dans
l’étude des détails en matière d’architecture et de construction. Selon elle,
un ouvrage qui marque les esprits résulte de la création d’un projet bien
défini et calculé qui imprime dans l’esprit du visiteur une image visuelle claire
et frappant tout en exprimant également les connaissances du lieu qui étayent l’idée
sous-tendant le projet.
L’idée de construire en ce lieu un ouvrage écologique et
durable avec une structure en bois était une évidence pour Paola Viganò. En
raison de la pression exercée sur les coûts, des méthodes de construction
disponibles et des exigences des donneurs d’ordre, il a été finalement décidé
d’opter pour une ossature bois classique sur une dalle en béton légèrement
surélevée par rapport au sol de la forêt. L’ouvrage se compose de cellules juxtaposées
de construction identique, ce qui s’est traduit par des parois doubles isolées
entre les chambres.
Pour répondre aux exigences élevées en matière
d’efficacité énergétique et de durabilité malgré la forme ronde et la grande dimension
du bâtiment, différentes mesures ont été adoptées : à côté des chambres bien isolées,
le passage intérieur vitré – que les architectes appellent également jardin
d’hiver – joue un rôle important pendant les périodes de transition pour la
production de chaleur passive faisant appel au rayonnement solaire. Les
avancées de toit fournissent de l’ombre aux vitres quand le soleil d’été est
haut dans le ciel et, associées aux arbres, elles empêchent une surchauffe du passage.
En revanche, elles ne s’opposent pas à l’incidence du soleil d’hiver dans la zone
de passage. En hiver, la masse du sol bois-béton poli et revêtu de résine sert d’accumulateur
de chaleur et elle refroidit l’ouvrage en été. Le toit végétalisé de dix centimètres
d’épaisseur assure également l’isolation du bâtiment en hiver alors qu’il maintient
la fraîcheur à l’intérieur du bâtiment en été.
Les architectes insistent sur le fait que, à travers le
projet de l’auberge, ils ont appris à connaître l’histoire du lieu, la nature
locale et le fonctionnement des aménagements culturels communautaires en
Belgique et que, par leur intervention au plan de l’architecture et du paysage,
ils ambitionnent de faire comprendre cette situation aux visiteurs.
![]() |
| Detailschnitt Coupe de détail |
Bauherrschaft | Maître d’ouvrage Flemish Government, AFM
Architektur | Architecture Studio Bernardo Secchi & Paola Viganò, Milano
Entwurfsteam I Equipe de conception Uberto degli Uberti, Tommaso Fait, Steven Geeraert, Emmanuel Giannotti, Stefano Peluso, Günter Pusch
Realisierung | Réalisation 2014







