VISO 04-2016 – THEMA / THÈME – Volkshotel Amsterdam/NL
Ein Hotel fürs Volk I Un Hôtel pour le peuple
Der Name «Volkshotel», ist
im ersten Moment verwirrend und lässt auf Anhieb an ein Hotel in einem
deutschsprachigen, kommunistischen Land denken. Auch das Gebäude selbst besitzt
äusserlich keinerlei Zeichen eines noblen Hotels, wie man es in Amsterdam
erwarten sollte, einer teuren Stadt, die jährlich von Millionen von Touristen
besucht wird. Auf der anderen Seite ist man eben in Amsterdam, einer Stadt, die
immer wieder überrascht, so auch im Falle des Volkshotels.
Le nom «Volkshotel», – «l’hôtel du peuple», peut troubler dans un premier temps et faire immédiatement penser à un hôtel situé dans un pays communiste et germanophone. L’extérieur du bâtiment ne possède aucun signe architectural noble, comme on est en droit de s’y attendre à Amsterdam, ville onéreuse mais néanmoins touristique prisée par des millions de visiteurs. Mais, on est bien à Amsterdam, ville qui surprend sans cesse, comme le fait aussi cet «hôtel du peuple».
Text | Texte: Michael Koller
Fotos | Photos: Daniel Nicolas, Luuk Kramer, Ilco Kemmere
Pläne | Plans: Studio Steenbruggen
Modernistischer weisser
Riese
Beim Volkshotel handelt es
sich um das ehemalige Bürogebäude der niederländischen Tageszeitung
«Volkskrant», das 1965 nach einem Entwurf des Architekturbüros Kraaijvanger
Architekten fertiggestellt und das zwischen 2012 und 2014 vom Studio
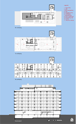
Steenbruggen zu einem drei Sterne Hotel umgebaut wurde. Das neungeschossige
Gebäude steht an der Wibautstraat, einer wichtigen Ausfahrtsstrasse Amsterdams nach
Südosten. Der Entwurf von Kraaijvanger Architekten kennzeichnete sich wie viele
andere modernistische Bürogebäude aus den 1960 und 1970er durch langgezogene
und rund um das Gebäude laufende Fensterbänder, die sich mit weissen Brüstungen
abwechselten. Steven Steenbruggen, der für die gesamten architektonischen, tragwerkstechnischen
und bautechnischen Umbauten des Gebäudes verantwortlich zeigte, behielt diese
Charakteristiken bei. Er liess die Brüstungen nachisolieren und mit einem
weissen und gerippten Strikolith-Verputz neu verkleiden. Letztere nehmen dem kompakten
Baukörper, zusammen mit den neuen bläulich schimmernden Isolierverglasungen seine
Masse und unterstreichen die horizontalen Linien.
Un
geant blanc et moderniste
«L’hôtel
du peuple» est l’ancien bâtiment du quotidien néerlandais «Volkskrant»,
bâtiment de 1965, d’après un projet du bureau d’architecture Kraaijvanger
Architekten, et transformé en hôtel trois étoiles entre 2012 et 2014 par le
Studio Steenbruggen. Le bâtiment de neuf étages se situe sur la Wibautstraat,
un axe majeur de circulation vers le sud-est d’Amsterdam. Le projet des
architectes Kraaijvanger se caractérisait comme d’autres bâtiments de bureau
moderniste des années 1960 et 1970 par de longues bandes de fenêtres
ininterrompus tout autour du bâtiment, bandes horizontales entre lesquelles s’alternaient
des balustrades blanches. Architecte responsable de la transformation du
bâtiment aux niveaux architectural, structurel et technique Studio Steenbruggen
a conservé cette caractéristique. Il a fait isoler les balustrades et les a
couvertes avec un crépi rainuré de couleur blanche. Les vitrages teintés en
bleu allègent, ensemble avec ces balustrades, la masse du bâtiment et
accentuent les lignes horizontales.
![]() |
Rechts vom Eingang befinden sich die verschiedenen «coworking spaces».
À droite de l’entrée on trouve différents espaces de «coworking». |
Kreativwerkstatt
Der zentrale und in der
Gebäudemitte gelegene Eingang wird durch einen langgestreckten, zinnoberroten,
scheinbar schwebenden Ringbalken angedeutet, der weit in den Strassenraum ragt
und sich bis in die Empfangshalle durchzieht. Betritt man das Gebäude, findet man
sich zunächst in einer in dunkle Farbtöne getauchten, industriehallenartigen Bar
wieder. Die Rezeption des Hotels zur Linken setzt sich in einem Bartresen fort,
der in ein einer wohnzimmerartigen Lounge-Ecke endet. Zur Rechten reihen sich
mehrere lange, einfache Holztische aneinander – «coworking spaces» – an denen
junge Leute emsig mit ihren Laptops arbeiten.
Bereits im frühen
Planungsstadium beauftragte der Bauherr auf Anraten des Architekten die beiden
Künstler und Innenarchitekten Christiane Müller und Bas van Tol vom Amsterdamer
Studio Müller Van Tol mit der neuen Innenraumgestaltung. Steven Steenbruggen entwarf
nach dem Abriss aller nicht tragenden Bauteile und dem völligen Freimachen
aller Geschossplateaus alle Gebäudegrundrisse neu. Studio Müller Van Tol
passten sich der klaren und übersichtlichen Grundrissgestaltung an, indem sie
unter anderem die Einrichtung des Erdgeschosses so einfach wie möglich hielten.
Bei der Farbkomposition griffen sie nicht nur auf wenige Grundfarben wie Rostbraun,
Schwarz, Rot, Gelb und Blau zurück, sondern setzten diese auch gekonnt ins
Szene: So verwendeten sie für die dunklen in der Gebäudetiefe liegenden Räume
ein sattes leuchtendes Gelb, das die Wände und die Plafonds der kleinen,
zellenartigen Sitzungsräume füllt. Diese kleinen Arbeitsräume befinden sich zum
Teil unter, zum Teil auf einem neu eingezogenen Mezzanin – einer rot
gestrichenen Stahlkonstruktion – und ergänzen die beiden grösseren
Versammlungsräume am Ende des Gebäudes.
![]() |
| Beim Umbau wurden im Erdgeschoss auch zwei grössere Konferenzräume eingerichtet. Lors de la transformation deux grandes salles de réunion ont été aménagées au rez-de-chaussée. |
Atelier creatif
Située
au milieu du bâtiment, l’entrée centrale est indiquée par une poutre ovale et
allongée de couleur vermillon, qui semble flotter au-dessus du trottoir et qui
se prolonge dans le hall d’entrée. En entrant dans le bâtiment, on arrive dans
un bar, teinté de couleurs sombres, qui rappellent un hall industriel. Sur la
gauche, la réception de l’hôtel se prolonge par un comptoir de bar qui se
termine par un lounge. A droite, une série de tables simples en bois borde cet
espace de «coworking » où des jeunes travaillent avec frénésie sur leurs
ordinateurs portables.
Dès le
début du stade de la conception intérieure et sur les conseils de l’architecte,
le maître d’ouvrage a fait intervenir sur l’aménagement intérieur les deux
artistes et décorateurs d’Amsterdam, Christiane Müller et Bas van Tol du Studio
Müller Van Tol. Après avoir libéré les plateaux des étages de tous les éléments
non structurels Steven Steenbruggen a redessiné complétement les plans de chaque
étage. Studio Müller Van Tol a intégré la simplicité et la clarté des plans de
manière à concevoir entre autres un ameublement le plus sobre possible au
rez-de-chaussée. Les deux designers d’intérieur ont pensé la création de ce
rez-de-chaussée aussi simple que possible. Dans
la composition de couleur ils ont eu recours non seulement à des couleurs de
base comme le noir, le rouge, le jaune et le bleu, mais ils les ont mis en
scène habilement : dans les petites salles de travail situées dans les endroits
les plus profonds et les plus sombres de cet espace, ils ont eu recours à un
jaune éclatant qui couvre murs et plafonds. Ces espaces de travail plus
confinés se trouvent soit en dessous soit au-dessus d’une nouvelle mezzanine –
une construction en acier peint en rouge – et viennent compléter les deux
salles de réunion au bout du bâtiment.
Offenheit und Transparenz
Bas van Tol gesteht eine
persönliche Faszination für die Architektur und Innenraumgestaltungen des
niederländischen Modernismus ein, die seiner Meinung nach von einer grossen
Offenheit, Generosität, Flexibilität und Einfachheit geprägt waren und für ihn
eine sehr positive, progressive Haltung der damaligen Entwerfer ausdrücken.
Das hohe, grosse Volumen
des Erdgeschosses und die neuen Galerien wurden durch den Abriss der
ursprünglichen Decke zwischen dem Erdgeschoss und dem 1. Obergeschoss und der
verschiedenen Trennwände möglich. Dadurch wurde aus dem kleinen Rezeptionsbereich
der Tageszeitung eine generöse Empfangshalle, die sich über das gesamte
Erdgeschoss hinzieht. Essentielle Elemente der Erdgeschossgestaltung sind für
Steven Steenbruggen die beinahe raumhohen Verglasungen zur neu gestalteten
Wibautstraat hin. Damit wollte er das Gebäude grosszügig zu diesem städtischen
Boulevard mit seinen breiten Trottoirs und seinen Baumreihen hin öffnen und auch
optisch für die Amsterdamer zugänglich machen. Diese neue Transparenz
unterstreichen Bas van Tol und Christiane Müller in ihren Möbelentwürfen durch
die Anordnung langer Bänke entlang der Glasfassaden, sowohl an der
Gebäudeinnenseite, als auch der Aussenseite.
Ouverture
et transparence
Bas
van Tol admet une fascination personnelle pour l’architecture et la conception
d’intérieur du modernisme néerlandais qui étaient à son avis, caractérisé par
une grande ouverture, une générosité, une flexibilité et une simplicité et qui
expriment selon lui une attitude positive et progressive des concepteurs de
l’époque.
La
démolition du plafond d’origine entre le rez-de-chaussée et le 1er étage a
permis de créer ce haut et grand volume au rez-de-chaussée et d’installer
quelques mezzanines. A la place de l’ancienne et étroite réception du journal
se trouve maintenant un hall généreux. Pour l’architecte Steven Steenbruggen
les vitrages sont des éléments essentiels dans la conception de cet espace,
vitrages qui s’ouvrent sur toute la hauteur du rez-de-chaussée. Ils donnent sur
la rue Wibautstraat rue qui a été réaménagée. Il voulait ainsi ouvrir
généreusement le bâtiment vers ce boulevard urbain caractérisé par des larges
trottoirs bordés de rangées d’arbres et le rendre visuellement plus accessible
pour les habitants. Bas van Tol et Christiane Müller soulignent dans leur
conception du mobilier cette nouvelle transparence par la disposition de bancs
le long des façades de verre, à la fois à l’intérieur et l’extérieur du
bâtiment.
Hoch über den Dächern
Die langen Bänke und
grossen Glasfassaden kehren auch in der Einrichtung des Clubs auf der obersten
Etage zurück, der gleichzeitig als Hotelrestaurant dient. Um eine
Schallübertragung in die darunterliegenden Hotelzimmer zu verhindern, wurde
dieser Clubraum wie eine unabhängige Box auf Dämpfern gelagert. Dadurch
entstand ein Höhenunterschied von einigen Stufen mit den umliegenden Räumen. Rund
um den Clubraum schuf Steven Steenbruggen unter dem weit auskragenden Dach einen
verglasten Rundgang. Von den Bänken hier und den Terrassen geniessen die
Besucher einen fantastischen Blick auf Amsterdam. Den krönenden Abluss des
Bauwerks bilden eine Sauna und der Spa-Bereich auf dem darüber liegenden Dach.
Sur
les toits
On
retrouve les longs bancs et les grandes baies vitrées dans l’aménagement du
club au dernier étage qui sert également de restaurant à l’hôtel. Pour éviter
la transmission du bruit et des vibrations dans les chambres sous-jacentes de
l’hôtel, ce club a été conçu et construit comme une boite indépendante posée
sur des amortisseurs de vibrations. C’est ce qui explique la différence de
hauteur de quelques marches avec les espaces voisins. Autour du club Steven
Steenbruggen a créé une coursive entièrement vitrée sous le toit en
porte-à-faux. Sur les bancs situés dans cette coursive et sur les terrasses,
les visiteurs peuvent profiter d’une vue imprenable sur Amsterdam. Un sauna et un
espace de détente couronnent le bâtiment.
Bilder der Vergangenheit
Das Hotel besitzt heute 172
Zimmern unterschiedlicher Grössen, vom minimalen Zweibettzimmer von nur 12 m2 über
kompakte 4-Bett Zimmer mit Hochbett bis zu Suite-artigen Familienzimmern von 45
m2. Die Unterschiedlichkeit der Räume wurde durch die leicht versetzte Anordnung
des Ganges im Verhältnis zur Längsachse des Gebäudes möglich. Dadurch wurden
die hofseitigen Zimmer gegenüber den strassenseitigen Zimmern grösser und
tiefer. Um auf die Besucher und Gäste auf die Geschichte des Gebäudes aufmerksam
zu machen, liessen Christiane Müller und Bas van Tol die Wände und verschiedene
Möbel der Gemeinschaftsräume und der Zimmer mit stark vergösserten Bildern aus
dem Fotoarchiv des Volkskrants bedrucken. Dieses gestalterische Element
verleiht dem Hotel laut Bas van Tol eine unverwechselbare Note, die es
einzigartig macht und gleichzeitig die Verbindung zwischen der Vergangenheit
und der Gegenwart legt. So wurden die in Schwarz-Weiss getauchten Wände der
Gänge der Obergeschosse mit Fotos von Bevölkerungsgruppen, die in den
vergangenen Jahrzehnten gegen das Establishment und für ihre Ideale
protestierten und damit ihre Zeitepoche markierten, dekoriert. Fotos der
niederländischen Anti-Autoritätsbewegung «Provo» der 1960er Jahre, von Hippies
aus den 1970er Jahren und der Hausbesetzer der 1980er Jahre spiegeln die
Atmosphäre der damaligen Zeit wieder.
Aujourd’hui,
l’hôtel dispose de 172 chambres de différentes tailles, allant d’une chambre
minimum de seulement 12 m2 avec 4 lits superposés aux chambres familiales de
style suite de 45 m2. La diversité des pièces a été rendue possible par la
disposition légèrement décalée du couloir intérieur par rapport à l’axe
longitudinal du bâtiment. Ainsi les chambres situées côté cour sont davantage
spacieuses que celles donnant sur la rue. Afin de faire prendre conscience aux
clients de l’histoire de l’édifice, dans les espaces communs et les chambres, Christiane
Müller und Bas van Tol ont décoré les murs et les meubles de photos provenant
des archives du «Volkskrant». Cet élément de design donne selon Bas van Tol à
l’hôtel une touche distinctive, touche qui le rend unique et qui relie en même
temps passé et présent. Ainsi, les murs des couloirs dans les étages supérieurs
sont décorés avec des photos en noir et blanc qui reflètent l’époque des dernières
décennies au cours desquelles la population a manifesté pour des idéaux: photos
du mouvement anti-autorité néerlandaise «Provo» des années 1960, les hippies
des années 1970 et dans les années 1980 les squatters.
![]() |
Die Einfachheit der verwendeten Materialien und Möbel charakterisiert die Zimmer.
Les chambres sont caractérisées par la simplicité des matériaux et des meubles utilisés. |
Die Aussicht in Szene gesetzt
Betritt man die Zimmer,
wird das Auge unweigerlich auf die Aussicht nach draussen gelenkt. Gerade die
strassenseitigen Zimmer wirken durch die hohen und breiten Fenster grösser, als
sie in Wirklichkeit sind. Der dicke Holzrahmen rund um die Fenster – der
vielfach als Tisch dient – macht aus der Aussicht ein gerahmtes Bild. Um den Eindruck
des scheinbar rahmenlosen Fensters zu unterstreichen, bestand Bas van Tol
darauf, anstatt von Vorhängen Luxaflex-Jalousien zu verwenden, die innenseitig
die Horizontalität der Fenster unterstreicht, und die in geöffnetem Zustand aus
dem Blick verschwinden.
Die einfachen und in
verschiedenen Farben gestrichenen und veredelten Brettschichtplatten, aus denen
die Möbel gebaut sind, kontrastieren farblich mit den rohen Betonwänden,
-stützen und -decken der Tragstruktur, die Steven Steenbruggen im gesamten
Gebäude freilegen liess. Sie unterstreichen aber gleichzeitig die karge und
etwas schroffe Ausstrahlung des gesamten Gebäudes. Nicht zuletzt erzeugen die
gebohrten Aussparungen der alten Steckdosen und Lichtschalter, die da und dort
noch in den Betonwänden sichtbar sind einen gewissen Charme und eine gewollte Authentizität,
die man wohl nur im Volkshotel finden kann.
![]() |
Manche Zimmer besitzen ein abgehängtes Hochbett für zwei zusätzliche Personen.
Certaines chambres disposent d’un lit mezzanine suspendu pour deux personnes supplémentaires. |
Mise en scene de la vue
En
entrant dans les chambres, l’œil est inévitablement attiré par la vue extérieure.
Ce sont surtout dans les chambres situées côté rue, où les hautes et larges
fenêtres semblent encore plus grandes qu’elles ne sont en réalité. Le cadre en
bois épais autour de la fenêtre, cadre qui sert également comme table, fait de
la vue l’impression d’une photo encadrée. Pour souligner encore plus cette
impression Bas van Tol a insisté sur l’utilisation des rideaux stores type
Luxaflex. Contrairement aux rideaux, ces stores accentuent l’horizontalité de
la fenêtre, stores qui disparaissent visuellement en position ouverte.
Les
meubles en bois laminé et stratifié sont peints avec des couleurs différentes
et contrastent avec les murs, les colonnes et les plafonds de la structure en
béton brut, béton épuré de tout enduit et voulu par Steven. Ces meubles
soulignent en même temps l’apparence rustique du bâtiment. Les marques visibles
dans le béton révèlent les anciennes installations électriques et donnent du
charme au bâtiment. Cette authenticité voulue et revendiquée est l’un des
aspects auquel il faudra s’attendre dans cet Hôtel du peuple.
![]() |
| Lageplan, Südfassade. Situation, façade sud. |
Viso
Studio Steenbruggen
Studio Müller van Tol
Volkshotel Amsterdam










